Diagrama Unifilar De Una Subestacion Electrica Pdf
López Díaz Manuel Director. DISEÑO DE UNA SUBESTACIÓN TRANSFORMADORA 22020 kV Autor.

Como Calcular Y Dibujar Un Diagrama Unifilar Para Un Sistema Electrico
Éste indica por una sola línea y por símbolos estándar que pueden ser obtenidos de la NMX-J-136-ANCE cómo se conectan las líneas de transmisión con los aparatos asociados de un sistema eléctrico.
Diagrama unifilar de una subestacion electrica pdf. Equipos Primarios y Secundarios de una Subestación Eléctrica Estructuras Tierras y Diagramas. En un diagrama unifilar general de una planta industrial se representarán los equipos con mayor relevancia dentro del sistema eléctrico. Diagramas Unifilares El objetivo de contar con un.
I OPERACION Stotal KVA x 1000 3 x Voperacion I OPERACION 300KVA x 1000 3 x 480V I OPERACION 36127 A Con este amperaje ver calibre de conductor y. CFE 2DI00-04 Tapa. Su principal función es la producción conversión transformación regulación repartición y distribución de la energía eléctrica.
Jose luis urbina gonzalez asesor. Todo RITEC Comunidades Colecciones Por fecha de publicación Autores Títulos Materias Esta colección Por fecha de publicación Autores Títulos Materias Mi cuenta Acceder. El diseño de una instalación eléctrica tiene su origen en el diagrama unifilar correspondiente que resulta del estudio de las necesidades de carga de la zona en el presente y con proyección a futuro de mediano plazo.
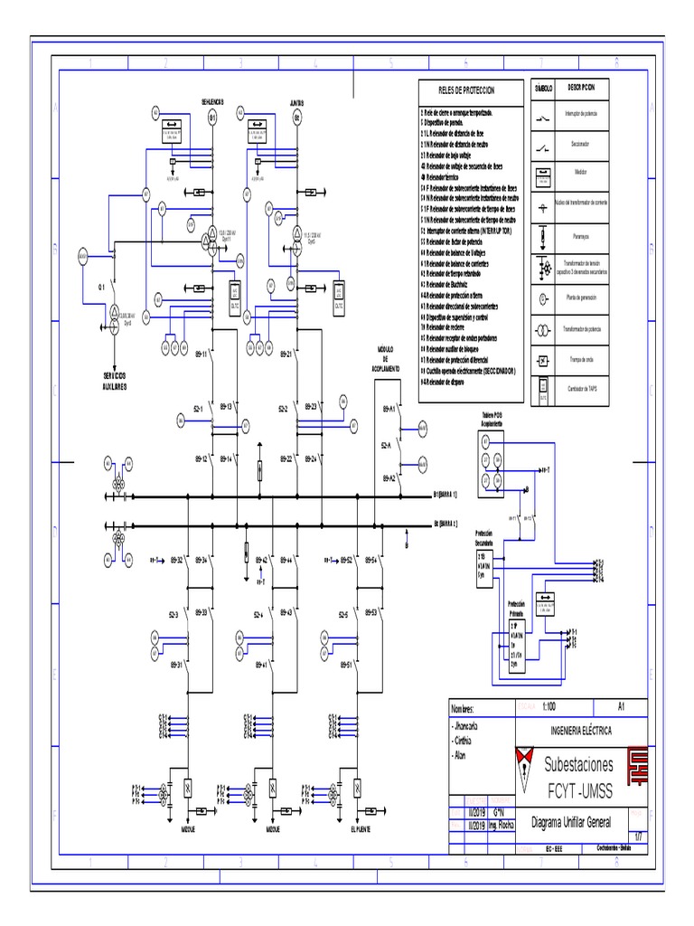
CFE 0MUR0-31 Suministro e Instalación de Muros y Techos de Lámina de Acero. Diagrama unifilar actual de la subestación. Un esquema o diagrama unifilar es una representacion grafica de una instalacion electrica o de parte de ella.
Explicar el funcionamiento de una subestación en base al diagrama unifilar Con el siguiente ejemplo se explica el f uncionamiento de la subestación eléctrica analizando los diagramas unifilares que se muestra analizando cada una de las vistas e integrando a cada una de ellas la explicación de los elementos y la función de cada uno de ellos para el funcionamiento En esta grafica se. Simbologia Daniel Alejandro Esquivel Abrego Arturo Guzmn Sandoval. Cadena Cruzada o de Alta Densidad.
Contiene un diagrama para un proyecto electrico el cual es para una planta de balanceado. Cuando la planta industrial es relativamente grande y compleja el diagrama general puede estar constituido por una colección de varios planos. El diagrama unifilar es una representación gráfica integral y sencilla de los sistemas.
Cervantes martinez sebastian. Manual para la operaciÓn de subestaciones elÉctricas con niveles de tensiÓn 115 kv 33 kv y 132 kv ing. Instituto politecnico nacional escuela superior de ingenieria mecanica y electrica 1.
Diagrama Unifilar de una casa. 3 dimensiones 3d accesibilidad supresión. Diagramas unifilares representan todas las partes que componen a.
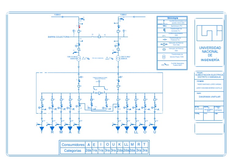
El diagrama unifilar es un squema grfico que indica por medio de lneas sencillas y smbolos elctricos la interconexin y componentes de una red elctrica. La subestación debe modificar y establecer los niveles de. Diagramas unifilares del sistema eléctrico nacional 2016 2021 programa de ampliación y modernización 2016 2030 septiembre 2016.
Una subestación eléctrica es una instalación o conjunto de dispositivos eléctricos que forma parte de un sistema eléctrico de potencia. Que para obtener el titulo de. En el siguiente ejemplo se tiene un esquema unifilar de una vivienda con su correspondiente instalación eléctrica.
2008 ley de responsabilidad de profesionistas Comparación de símbolos entre normas. Instituto politecnico nacional. SIMBOLOGÍA DIAGRAMAS UNIFILARES Ing.
A este diagrama simplificado de un sistema eléctrico se le llama diagrama unifilar o de una línea. Metodo de las componentes simetricas a este metodo se le conoce como tal por que en el. Ricardo omar alvarez gamez.
A continuación veremos un ejemplo muy sencillo de lo que podría ser el unifilar general de una planta. Ejemplos de diagramas unifilares en autocad. Hoy día es más importante que nunca diseñar y operar sistemas eléctricos que no sólo tengan la máxima eficiencia practicable sino que.
Los diagramas unifilares representan todas las partes. Obed Renato Jimenez Meza Jefe de la Academia de Iluminacion y Alta Tension FIME 11 Un conjunto de elementos que sirve para transformar la energía Eléctrica cuidando el ecosistema y el impacto ambiental. CFE 00200-02 Diagramas Unifilares de Arreglos para Subestaciones.
Villegas franco jorge. Diagrama unifilar El diagrama unifilar es una representacin grafica integral y sencilla del sistema elctricos en el cual se indican las subestaciones transformadores tableros circuitos alimentadores y derivados as como la interconexin entre ellos. De manera particular lo trabajado en esta asignatura se aplica en el estudio de los temas.
Trifasica mas alta corriente. PELIGROS Y RIESGOS EN UNA SUBESTACION ELECTRICA Los riesgos eléctricos son fundamentalmente de cuatro tipos. Electrica de la esime zacatenco tesis.
Tensión frecuencia número de fases capacidad calibre de conductores longitud o algún otro dato de interés. El diseo de una instalacin elctrica tiene su origen en el diagrama unifilar correspondiente que resulta del estudio de las necesidades de carga de la zona en el presente y con proyeccin a un futuro de mediano plazo. 62 Diagrama Unifilar _____ 14 63 Localización y Selección del T erreno _____ 19 64 Estudios Previos _____ 22.
Todo dependiendo del uso que se pretende hacer del diagrama. El esquema unifilar se distingue de otros tipos de esquemas electricos 14 Feb 2014 MANUAL TECNICO DE SIMBOLOGIA PARA DIAGRAMAS UNIFILARES Y PLANOS. CFE 04400-42 Guía de Criterios Básicos para Subestaciones de 115 230 y 400 kV.
Carlos alberto riÓs. SUBESTACION ESQUEMA UNIFILAR Alrededor de un 30 de todas las fuentes mundiales de energía primarias son empleadas para generar energía eléctrica y casi toda ella es trasmitida y distribuida mediante sistemas de tensión alterna de 50 ó 60 Hz. Electrica cÁlculo y selecciÓn de una subestacion compacta para un carcamo de bombeo de aguas residuales t e s i s que para obtener el titulo de ingeniero electricista p r e s e n t a n.
Electrodinamicos en una subestacion electrica se realizan los estudios de cortocircuito para fallas de. Jimenez meza - jefe de 22 academia de iluminacion y alta tension. En él también se pueden representar características técnicas como lo son.
Manual para la operaciÓn de subestaciones elÉctricas con niveles de tensiÓn 115 kv 33 kv y 132 kv universidad tecnolÓgica de pereira facultad de tecnologÍa programa de tecnologÍa elÉctrica pereira 2017 william osorio patiÑo carlos alberto culma ramÍrez. EL presente documento tiene por objeto normar simbologia CHEC SA ESP con. Diagrama Unifilar de una subestación eléctrica.
Estudio de las. Fernández Magester Gerardo Entidad colaboradora. Linea a tierra mas frecuente.
El diagrama unifilar debe mostrar los detalles de los circuitos empleados para la alimentación del sistema de bombeo y debe indicar la carga total. Diagrama Unifilar tiene una estructura de Árbol aunque no es la única. Eléctricos en el cual se indican las subestaciones transformadores tableros circuitos alimentadores y derivados así como la interconexión entre ellos.
Instituto politÉcnico nacional escuela superior de ingenierÍa mecÁnica y electrica unidad profesional adolfo lÓpez mateos tema de. A continuación te mostraremos ejemplos de esquemas unifilares de una vivienda subestación eléctrica ascensores y cuadros eléctricos. El propósito de un diagrama unifilar es el de suministrar en forma concisa información.
23 calculos de corto circuito mc. Jesus alberto flores cruz. Cálculos para transformador 3Ø de 300KVA Conductor Fase.
A 30 de enero del 2009. ICAI Universidad Pontificia Comillas. Diagrama unifilar de una casa.
Obed Renato Jimenez Meza.

Elaboracion De Diagrama Unifilar Pruebas Iniciales Mantenimiento Y Diagnostico De Subestaciones Electricas
![]()
Diagrama Unifilar De Subestacion Propuesta 51 87 Kb Bibliocad

Esquema Unifilar Que Es Como Elaborar Y Ejemplos

Diagrama Unifilar De Prot Electricas De Subestacion Reductora Industrial 115 35kv 15mva Parte2 Youtube
Diagrama Unifilar Lineas 115 Kv Y Subestaciones Barinas Pdf Electricidad Electromagnetismo

Simulacion Del Compensador Estatico De Var De La Subestacion Culiacan Tres Para El Analisis De Transitorios Ingenieria Investigacion Y Tecnologia

Universidad Tecnologica De Puebla Pdf Descargar Libre
Subestacion Aerea 25 Kva En Poste 18m Diagrama Unifilar Pdf Componentes Electricos Ingenieria

Pdf Estudio De Diseno De Diagramas De Operacion En Sistemas De Supervision Control Adquisicion De Datos En Tiempo Real Scada Para Subestaciones De Distribucion
Diagrama Unifilar Barra Doble Pdf Transformador Poder Fisica
Diagrama Unifilar Pdf Cableado Electrico Tecnologia Energetica

Diagrama Unifilar De Una Subestacion
Confiabilidad Estructural Y Politicas De Mantenimiento A La Subestacion Electrica Yaritagua 115 13 8 Kv

Pdf Metodo Para Recerrar El Interruptor Del Medio En Subestaciones De Interruptor Y Medio Del Sistema Electrico Nacional

Pdf Estudio De Diseno De Diagramas De Operacion En Sistemas De Supervision Control Adquisicion De Datos En Tiempo Real Scada Para Subestaciones De Distribucion
2 Diagrama Unifilar Din A3 Title Block Pdf Ingenieria Electrica Equipo Electrico





Posting Komentar untuk "Diagrama Unifilar De Una Subestacion Electrica Pdf"